Prodej - dům/vila, 134 m²
Hřbitovní, Krupka, Teplice
16 700 000 KčProdej - dům/vila, 134 m²
Hřbitovní, Krupka, Teplice
Prodej rodinného domu 134 m², Krupka
Tento moderní bungalov je zážitek z bydlení.
Existují domy, které splní očekávání. A pak jsou tu takové, které je překonají.
Tato výjimečná novostavba dokončená v r. 2025 představuje dokonalou harmonii moderní architektury, precizního zpracování a klidného bydlení v naprostém soukromí.
Minimalistický bezbariérový bungalov ve tvaru „L“ byl navržen tak, aby maximálně propojil interiér s exteriérem – a vytvořil prostor, ve kterém se dobře žije a přirozeně odpočívá.
Architektura, která pracuje se světlem:
Hlavní obytný prostor je definicí moderního luxusu – otevřený, vzdušný a zaplavený denním světlem díky velkoformátovým proskleným stěnám a okny s venkovními žaluziemi. Každý pohled směřuje ven – na terasu, bazén a upravenou zahradu. Díky ostrůvku nevaříte do zdi, ale s výhledem.
Kuchyně na míru s dominantním ostrůvkem není jen funkčním prvkem, ale elegantním centrem dění. Čisté linie, nadčasová barevnost a důraz na detail vytváří interiér, který obstojí i v těch nejnáročnějších měřítkách.
Promyšlená dispozice a komfort bez kompromisů:
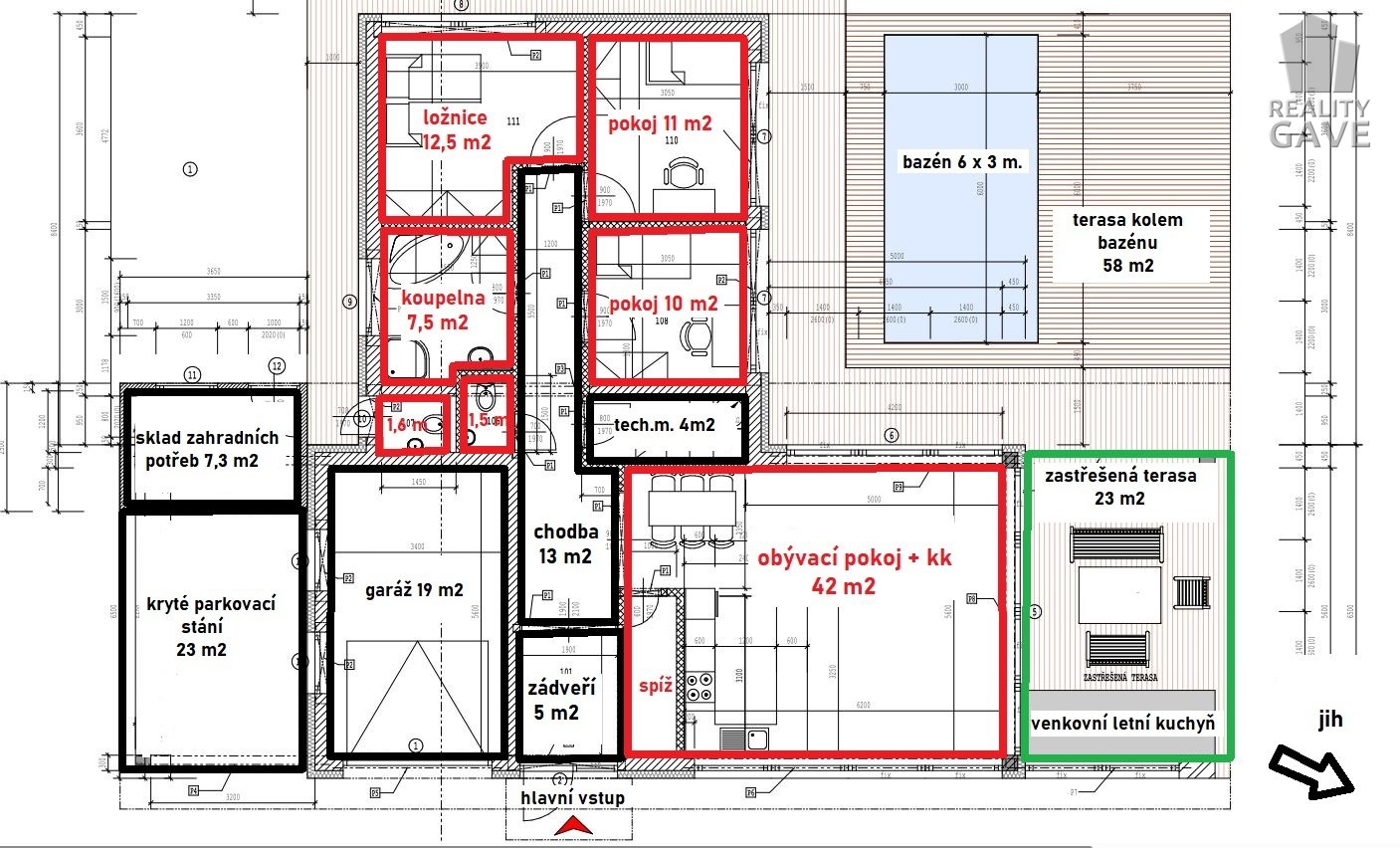
Dispozice 4+kk nabízí ideální rovnováhu mezi otevřeným společenským prostorem a klidovou zónou ložnic.
3 samostatné ložnice poskytují dostatek soukromí.
Designová koupelna s vanou i sprchovým koutem je dostatečně velká a jak vystřižená z časopisu.
Samostatná toaleta pro hosty znamená soukromí a klid i pro návštěvy.
Praktická technická místnost nabízí prostor pro pračku, sušičku i technologie domu jako např. centrální vysavač.
Samozřejmostí je podlahové vytápění v celém domě, zajištěné úsporným plynovým kondenzačním kotlem Buderus, který přináší nejen tepelný komfort, ale i efektivní provoz.
Každý detail byl navržen s důrazem na funkčnost, estetiku a každodenní pohodlí.
Venkovní prostor jako soukromý resort:
To, co tuto nemovitost skutečně odlišuje, je její exteriér.
Zastřešená terasa plynule navazuje na interiér a vytváří plnohodnotnou venkovní obytnou zónu s plně vybavenou letní kuchyní. Je to Ideální místo pro dlouhé letní večery, společenská setkání i klidné chvíle jen pro vás.
Dominantou zahrady je designový nerezový bazén (6 x 3 x 1,5 m.) s protiproudem, masážní lavicí a zastřešením – elegantní, nadčasový a připravený k maximálnímu využití. Nerez – to je dlouhověkost, minimální údržba a oslňující vzhled.
Pečlivě upravený pozemek o velikosti 747 m² nabízí dostatek prostoru, otevřené výhledy 360 ° a především pocit soukromí, který dnes patří k nejcennějším atributům bydlení.
Praktičnost a bezpečí v každém detailu:
Součástí domu je garáž pro jeden vůz a další parkovací stání pod elegantním krytým přístřeškem, který architektonicky navazuje na stavbu.
Celý pozemek je oplocen moderním designovým plotem, který zajišťuje maximální soukromí a opakovaně luxusní vzhled.
Lokalita, která má svůj charakter:
Dům je situován v klidné části obce mimo hlavní ruch – v prostředí, kde si užijete ticho, bezpečí a harmonii každodenního života. Přesto zůstáváte v dosahu veškeré občanské vybavenosti. Je zde minimální pohyb osob i vozidel.
Technická kvalita bez kompromisů:
Novostavba dokončená v r. 2025
Zděná konstrukce (Porfix 300 mm + 160 mm zateplení zdiva i střechy)
Nízké provozní náklady díky energetické třídě B
Zastavěná plocha 155 m², užitná plocha interiérů a garáže 134 m²
Moderní technologie a precizní provedení potkáte na každém kroku v mnoha detailech.
Tato nemovitost není jen domem. Je prostorem, kde se kvalita bydlení stává standardem a každý den má nádech výjimečnosti.
Pokud máte vysoké nároky na design, soukromí i životní styl, právě jste možná našli místo, které splní vše a bude těžké najít srovnání jinde.
| Cena: | 16 700 000 Kč |
| Číslo zakázky: | REALITYMIX-00037 |
Podrobné informace
- Poloha objektu: samostatný
- Druh objektu: cihlová
- Stav objektu: novostavba
- Počet podlaží objektu: 1
- Typ domu: přízemní
- Zastavěná plocha: 155 m²
- Plocha parcely: 747 m²
- Užitná plocha: 134 m²
- Terasa: 96 m²
- Ostatní: Bezbarierový přístup, Bazén, Garáž, Parkoviště
- Umístění objektu: klidná část obce
- Komunikace: asfaltová
- Elektřina: Elektro - 230 V, Elektro - 400 V
- Voda: Voda - dálkový vodovod
- Plyn: Plynovod
- Topení: Ústřední - plynové
- Odpad: Kanalizace
- Energetická náročnost budovy: B - Velmi úsporná
- Ukazatel energetické náročnosti budovy: 68 kWh/m²
- Energetický ukazatel podle vyhlášky: č. 264/2020 Sb.
Právní rádce
-
Detail
V tomto článku shrneme nejdůležitější věci, které byste si měli promyslet, pokud se chystáte prodat svou nemovitost a chcete, abyste s kupujícím nemusel následně řešit vzniklé problémy.
Jako prodávající nesete rizika spojená nejen se samotným obchodem, ale i se stavem nemovitosti v době prodeje a pro minimalizaci rizik, je dobré se zamyslet nad uvedenými oblastmi.
-
Detail
Realitní makléř má své nezastupitelné místo v realitním obchodu. Realitním makléřem nemyslím nevzdělané jelito, které absolvovalo dvoudenní školení a ví, jak se nahraje inzerát na inzertní portál.
Realitním makléřem, který se Vám skutečně vyplatí, je zkušený profesionál, který je schopen Vám dobře poradit jak prodat za co nejvíc a s nejmenším rizikem a hlavně je Vás schopen obratně provést celým realitním obchodem.