Prodej - dům/vila, 140 m²
Horákov, Brno-venkov
6 999 000 KčProdej - dům/vila, 140 m²
Horákov, Brno-venkov
Prodej hrubé stavby rodinného domu s možností dokončení firmou - Horákov, Mokrá-Horákov
V malebné části Horákov, v o bci Mokrá-Horákov, Vám nabízím moderní rodinný dům k dokončení, s dispozicí 6+kk, zahradou a garáží - ideální místo pro pohodové rodinné bydlení jen pár minut od Brna.
Dům má užitnou plochu přibližně 140 m, podlahová plocha činí asi 150 m a pozemek má celkovou výměru 248 m. Součástí je také garáž o velikosti přibližně 12 m. Nemovitost se v současné době nachází ve fázi hrubé stavby, přičemž zkušená stavební firma je připravena dům dokončit na klíč zhruba do půl roku. Kompletní rozpočet dokončení je k dispozici na vyžádání.
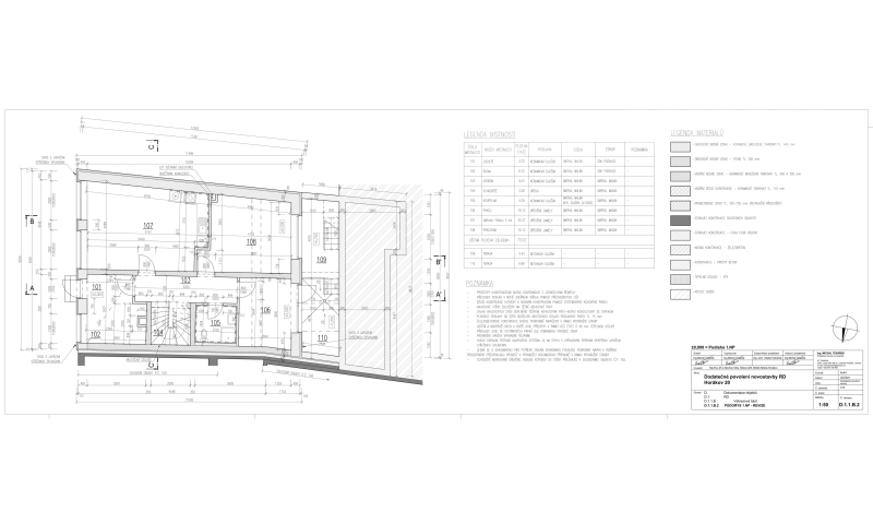
1. NP
Zádveří - 3.72 m2, Šatna - 6.12 m2, Chodba - 9.01 m2, Schodiště - 3.28 m2, Koupelna - 4.29 m2, Pokoj - 10.12 m2, Obývací pokoj s KK - 25.37 m2, Pracovna - 10.12 m2
Užitná plocha celkem: 72.02 m2
Terasa - 5.61 m2, Terasa - 6.66 m2
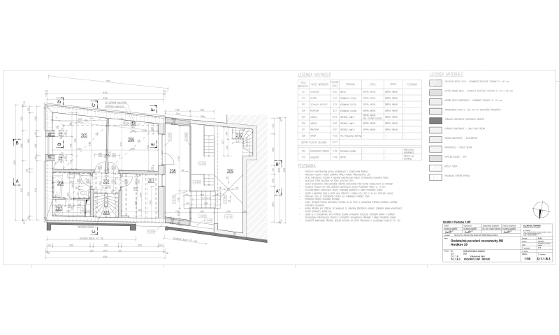
2. NP
Schodiště - 0.55 m2, Chodba - 3.94 m2, Technická místnost - 3.19 m2, Koupelna - 6.21 m2, Ložnice - 18.70 m2, Ložnice - 15.92 m2, Pracovna - 10.07 m2, Terasa - 14.20 m2
Užitná plocha celkem: 72.77 m2
Vyrovnávací podesta - 17.46 m2, Schodiště - 17.46 m2
Velkou výhodou je možnost přizpůsobit si finální podobu domu podle vlastních přání - ať už jde o interiér, materiály nebo doplňkové úpravy. V případě potřeby lze nemovitost upravit i na dvě samostatné bytové jednotky, což umožňuje vícegenerační bydlení, pronájem nebo propojení bydlení s podnikáním.
Parkování je možné na veřejném prostranství přímo před domem. Na pozemku se navíc nachází garáž přístupná z druhé strany pozemku.
Lokalita, která má své kouzlo
Mokrá-Horákov leží v těsné blízkosti Brna a je obklopena krásnou přírodou Moravského krasu. V okolí se nachází množství turistických i cyklistických tras, včetně známé jeskyně Pekárna. Obec nabízí kompletní občanskou vybavenost a bohaté možnosti kulturního i sportovního vyžití, díky čemuž je ideální nejen pro rodinný život, ale i pro aktivní způsob trávení volného času.
Zaujala Vás tato nemovitost? Zavolejte mi pro více informací nebo domluvení prohlídky.
| Cena: | 6 999 000 Kč |
| Poznámka: | Cena včetně provize RK a právních služeb |
| Datum k nastěhování: | 03.10.2025 |
| Číslo zakázky: | REALITYMIX-232726 |
Podrobné informace
- Poloha objektu: řadový
- Druh objektu: cihlová
- Stav objektu: ve výstavbě (hrubá stavba)
- Počet podlaží objektu: 1
- Typ domu: přízemní
- Zastavěná plocha: 131 m²
- Plocha parcely: 248 m²
- Zahrada: 117 m²
- Užitná plocha: 140 m²
- Doprava: vlak, dálnice, silnice, MHD, autobus
- Elektřina: Elektro - 230 V, Elektro - 380 V
- Voda: Voda - dálkový vodovod
- Telekomunikace: Internet
- Topení: Ústřední - plynové
- Odpad: Kanalizace
- Ostatní rozvody: Satelit, Kabelové rozvody, Ostatní rozvody
- Energetická náročnost budovy: B - Úsporná
- Ukazatel energetické náročnosti budovy: 66 kWh/m²
Právní rádce
-
Detail
V tomto článku shrneme nejdůležitější věci, které byste si měli promyslet, pokud se chystáte prodat svou nemovitost a chcete, abyste s kupujícím nemusel následně řešit vzniklé problémy.
Jako prodávající nesete rizika spojená nejen se samotným obchodem, ale i se stavem nemovitosti v době prodeje a pro minimalizaci rizik, je dobré se zamyslet nad uvedenými oblastmi.
-
Detail
Realitní makléř má své nezastupitelné místo v realitním obchodu. Realitním makléřem nemyslím nevzdělané jelito, které absolvovalo dvoudenní školení a ví, jak se nahraje inzerát na inzertní portál.
Realitním makléřem, který se Vám skutečně vyplatí, je zkušený profesionál, který je schopen Vám dobře poradit jak prodat za co nejvíc a s nejmenším rizikem a hlavně je Vás schopen obratně provést celým realitním obchodem.