Prodej - pozemek pro komerční výstavbu, 12 165 m²
Násedlovice, Hodonín
35 000 000 KčProdej - pozemek pro komerční výstavbu, 12 165 m²
Násedlovice, Hodonín
Prodej stavebního pozemku 12165m2 se schváleným stavebním povolením na bytové domy, okres Hodonín
Jedná se o jedinečnou investiční příležitost developerský projekt 4 bytových domů se stavebním povolením, nyní se dokončuje stavební povolení ještě na další 3 bytové domy.
Základní informace k projektu
- Celková výměra pozemku: 12 165 m
- Umístění: Násedlovice, okres Hodonín (Jihomoravský kraj)
- Územní plán: plochy smíšené občanské vybavenosti
- Stavební povolení: vydáno pro 4 bytové domy, nyní se dokončuje povolení ještě pro další 3 bytové domy
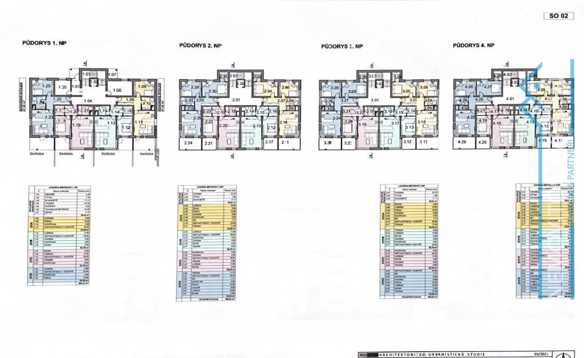
- Projekt: Polyfunkční a bytový soubor Šohaj I. etapa
Projektová dokumentace schválená výstavba:
- 4 bytové domy se 4 nadzemními podlažími (S02-S05)
- Každý dům: 16 bytových jednotek
- Dispozice bytů: 2+kk a 3+kk, vybrané s terasou či zahradou
- Celkem: 64 bytů
- Část domů řešena jako polyfunkční prostory pro služby, ateliéry či pronájem
- Předpokládané využití: bydlení, seniorské bydlení, komerční prostory
Inženýrské sítě a infrastruktura:
- Vodovod, kanalizace, plyn, NN, VO, slaboproud kompletně řešeno v rámci projektu
- Vsakovací zařízení dešťových vod dle ČSN 75 9010
- Napojení na obecní komunikaci ze dvou stran (sil. II/419 a III/41922)
- Součástí projektu: nové komunikace, parkovací plochy, veřejné osvětlení, sadové úpravy
Charakter lokality:
- Klidná jižní část obce Násedlovice, v okolí sportoviště a kulturního domu
- Okolní zástavba: rodinné domy vesnického typu
- Směrem na jih otevřená krajina Hanáckého Slovácka
- Obec s kompletní občanskou vybaveností, výborné dopravní spojení
- Brno 40 km, Kyjov 20 km, Žarošice 4 km
Připravené podklady:
- Projektová dokumentace DSP vydané stavební povolení
- Kompletní výkresová a technická část
- Výkaz ploch, napojení na sítě, dopravní řešení, vsakovací zařízení,
- Zahradní a sadové úpravy
Shrnutí investičního potenciálu:
- Hotový a schválený projekt s 64 byty a komerční částí (+ ve schvalování dalších 48 bytů)
- Vhodné pro developerský projekt, fondy či investory
- Okamžitě realizovatelný záměr bez dalších povolovacích procesů
Pro více informací či v případě zájmu o více podkladů, kontaktujte prosím pana Ing. Miklíka, volat můžete kdykoliv, včetně víkendů a svátků.
| Cena: | 35 000 000 Kč |
| Poznámka: | - včetně právního servisu, provize realitní kanceláři i DPH |
| Plocha: | 12165 m² |
| Číslo zakázky: | REALITYMIX-318 |
Podrobné informace
- Celková plocha: 12165 m²
- Druh pozemku: pro komerční výstavbu
- Doprava: silnice, autobus
Právní rádce
-
Detail
V tomto článku shrneme nejdůležitější věci, které byste si měli promyslet, pokud se chystáte prodat svou nemovitost a chcete, abyste s kupujícím nemusel následně řešit vzniklé problémy.
Jako prodávající nesete rizika spojená nejen se samotným obchodem, ale i se stavem nemovitosti v době prodeje a pro minimalizaci rizik, je dobré se zamyslet nad uvedenými oblastmi.
-
Detail
Realitní makléř má své nezastupitelné místo v realitním obchodu. Realitním makléřem nemyslím nevzdělané jelito, které absolvovalo dvoudenní školení a ví, jak se nahraje inzerát na inzertní portál.
Realitním makléřem, který se Vám skutečně vyplatí, je zkušený profesionál, který je schopen Vám dobře poradit jak prodat za co nejvíc a s nejmenším rizikem a hlavně je Vás schopen obratně provést celým realitním obchodem.