Prodej - dům/vila, 75 m²
Hřivčice, Louny
3 490 000 KčProdej - dům/vila, 75 m²
Hřivčice, Louny
Prodej rodinného domu 75 m² na parcele 204 m² v obci Hřivčice
Dům stojí na pozemku o velikosti 204 m², užitná plocha obytné části činí přibližně 75 m², a je ihned k užívání.
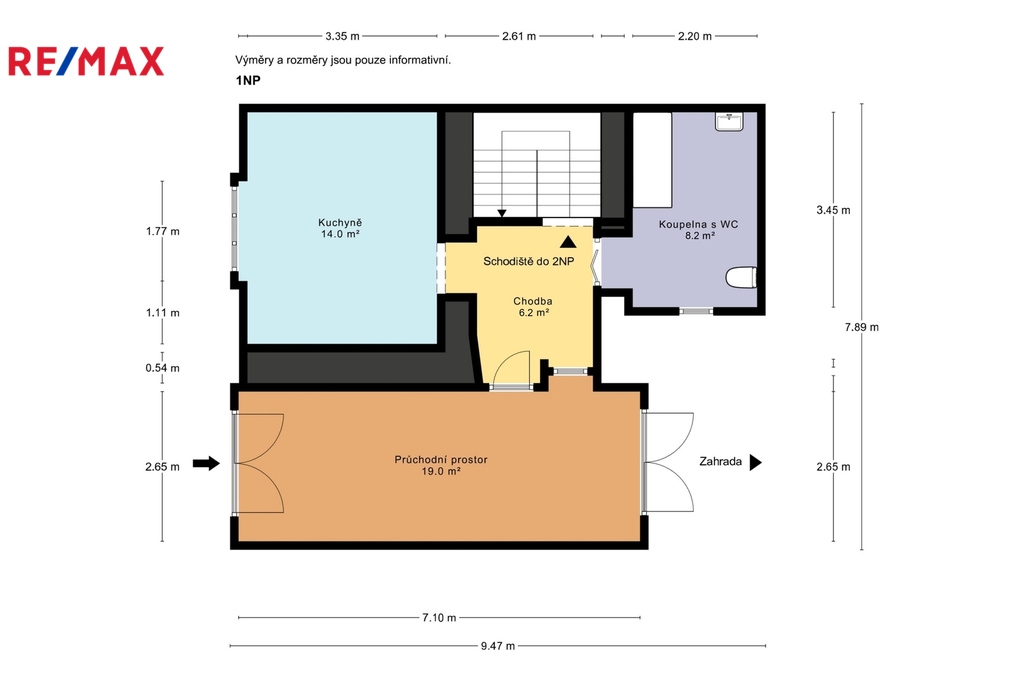
Do domu se vstupuje přes prostornou vstupní halu (19 m²), odkud se vchází hlavními dveřmi do obytné části. V přízemí se nachází předsíň (6,2 m²), kuchyně (14 m²) a koupelna (8,2 m²). V patře je prostorná chodba (8,77 m²), ložnice (13,5 m²), obývací pokoj (16,42 m²) a šatna (3,54 m²).
Za domem se nachází hospodářská budova a dílna, které spolu s vstupní halou tvoří praktické zázemí domu. Na tuto část přímo navazuje menší zahrada, ideální pro odpočinek nebo pěstování.
K domu je přivedena obecní voda, elektřina (230 V) i plyn, odpady jsou řešeny jímkou. Tepelné čerpadlo s rozvodem do radiátorů zajišťuje úsporné vytápění, o teplou vodu se stará elektrický bojler.
Obec Hřivčice nabízí klidné venkovské prostředí s výbornou dostupností služeb. V obci je menší obchod se smíšeným zbožím a autobusová zastávka. Ve 3 km vzdálené Peruci najdete školu, školku, poštu, lékaře i restaurace. Na dálnici D7 se dostanete za 10 minut, do Loun přibližně za 15 minut.
Pokud hledáte poctivý venkovský dům s duší, hospodářským zázemím a zahradou přímo u domu, kde můžete bydlet hned a postupně si ho upravit podle svých představ, tahle nemovitost stojí za vaši pozornost.
Koupi bytu lze financovat pomocí hypotečního úvěru, jež vám taktéž pomůžeme výhodně zařídit.
Spolupráce s konkurenčními realitními makléři vítána.
| Cena: | 3 490 000 Kč |
| Číslo zakázky: | REALITYMIX-425257 |
Podrobné informace
- Poloha objektu: řadový
- Druh objektu: cihlová
- Stav objektu: dobrý
- Počet podlaží objektu: 2
- Typ domu: patrový
- Zastavěná plocha: 140 m²
- Plocha parcely: 204 m²
- Zahrada: 80 m²
- Užitná plocha: 75 m²
- Umístění objektu: centrum obce
- Doprava: dálnice, silnice, autobus
- Komunikace: asfaltová
- Elektřina: Elektro - 230 V
- Voda: Voda - dálkový vodovod
- Telekomunikace: Internet
- Plyn: Plynovod
- Ostatní rozvody: Satelit
- Energetická náročnost budovy: G - Mimořádně nehospodárná
- Energetický ukazatel podle vyhlášky: č. 264/2020 Sb.
Právní rádce
-
Detail
V tomto článku shrneme nejdůležitější věci, které byste si měli promyslet, pokud se chystáte prodat svou nemovitost a chcete, abyste s kupujícím nemusel následně řešit vzniklé problémy.
Jako prodávající nesete rizika spojená nejen se samotným obchodem, ale i se stavem nemovitosti v době prodeje a pro minimalizaci rizik, je dobré se zamyslet nad uvedenými oblastmi.
-
Detail
Realitní makléř má své nezastupitelné místo v realitním obchodu. Realitním makléřem nemyslím nevzdělané jelito, které absolvovalo dvoudenní školení a ví, jak se nahraje inzerát na inzertní portál.
Realitním makléřem, který se Vám skutečně vyplatí, je zkušený profesionál, který je schopen Vám dobře poradit jak prodat za co nejvíc a s nejmenším rizikem a hlavně je Vás schopen obratně provést celým realitním obchodem.