Prodej - dům/vila, 314 m²
Nad statkem, Praha-Újezd, Újezd u Průhonic
35 990 000 KčProdej - dům/vila, 314 m²
Nad statkem, Praha-Újezd, Újezd u Průhonic
Dvougenerační novostavba RD 10+2 v MČ Újezd u Průhonic
Máte velkou rodinu a hledáte harmonii klidného života, prvotřídního komfortu a aktivního vyžití, aniž byste se vzdali rychlého spojení s centrem Prahy?
Právě pro vás máme exkluzivní novostavbu dvougeneračního rodinného domu, která se nachází v jedné z nejvyhledávanějších lokalit – v jihovýchodní okrajové části Prahy, v lukrativním Újezdu u Průhonic.
PROSTOR A FLEXIBILITA BEZ KOMPROMISŮ
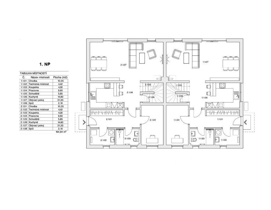
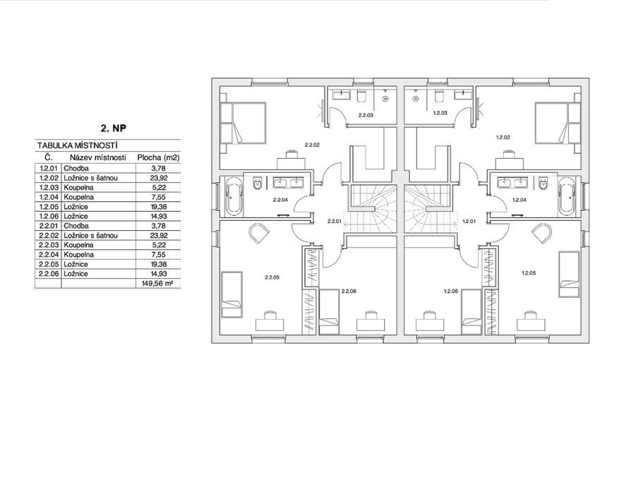
Tento architektonicky promyšlený dům nabízí dvě zcela nezávislé bytové jednotky s dispozicí dvakrát 5+KK, což je ideální řešení pro vícegenerační bydlení, nebo kombinaci vlastního bydlení a investičního pronájmu.
• Celková podlahová plocha domu 314 m² rozložená ve dvou jednotkách se dvěma nadzemními podlažími.
• Fáze 'WhiteWall': Dům je dokončen z 90 %, což vám dává jedinečnou šanci dokončit interiér (podlahy, dveře, koupelny) přesně podle vašich představ a vkusu.
• Možnost "Na Klíč": Chcete se nastěhovat bez starostí? Developer zajistí kompletní dokončení až po předání klíčů.
• Kolaudace Říjen 2025.
MAXIMÁLNÍ ÚSPORY A NADSTANDARD
Užijte si moderní bydlení, které šetří vaši peněženku i planetu. Dům spadá do energetické třídy B (velmi úsporná budova), což zaručuje mimořádně nízké provozní náklady.
• Tepelné čerpadlo pro efektivní vytápění a ohřev vody.
• Teplovodní podlahové topení v celém domě pro maximální tepelný komfort.
• Rekuperace tepla zajišťující další úsporu energií.
• Příprava na FVE, smarthome, zabezpečovací systém a krb!
• Luxusní prvky: Velkoformátové obklady, značkové sanitární předměty a elektrické žaluzie jsou součástí projektu dokončení „na klíč“ s 10 % doplatkem.
LOKALITA, KTERÁ VÁM VEZME DECH
Újezd u Průhonic kombinuje klid rezidenční čtvrti s výjimečnou občanskou vybaveností a dechberoucí přírodou.
Příroda a Sport:
Okolí je rájem pro aktivní život:
• Milíčovský les, Průhonický park a dendrologická zahrada jsou ideální pro běh, cyklistiku a rodinné výlety.
• V docházkové vzdálenosti najdete sportoviště (fotbal, tenis, fitness) a tři rybníky.
Dostupnost a vybavenost:
• MHD zastávka: Pouhých 170 metrů od domu.
• Rychlé napojení na D1: Dvě varianty nájezdu pro bezproblémovou cestu.
• Občanská vybavenost: Škola, školka, obchody, restaurace a kavárna v docházkové vzdálenosti.
• Nákupní ráj: Čestlice, Průhonice a nákupní centrum Chodov jsou autem dostupné za pouhých 10 minut.
Udělejte první krok ke svému snu!
Nenechte si ujít tuto výjimečnou příležitost. Získejte unikátní bydlení, které poroste s vaší rodinou.
Kontaktujte nás ještě dnes!
Pro bližší informace o ceně, možnostech dokončení a domluvení prohlídky kontaktujte makléře. (Pozn.: Některé fotografie jsou vizuálním návrhem.)
| Cena: | 35 990 000 Kč |
| Poznámka: | Uvedená cena je za obě bytové jednotky, tj. za celý dům s pozemkem. |
| Datum k nastěhování: | 04.10.2025 |
| Číslo zakázky: | REALITYMIX-971856 |
Podrobné informace
- Poloha objektu: samostatný
- Druh objektu: cihlová
- Stav objektu: novostavba
- Počet podlaží objektu: 2
- Typ domu: patrový
- Zastavěná plocha: 198 m²
- Plocha parcely: 1385 m²
- Zahrada: 1203 m²
- Užitná plocha: 314 m²
- Terasa: 30 m²
- Doprava: dálnice, silnice, MHD
- Elektřina: Elektro - 230 V
- Voda: Zdroj pro celý objekt, Voda - dálkový vodovod
- Telekomunikace: Internet
- Plyn: Plynovod
- Odpad: Kanalizace
- Energetická náročnost budovy: B - Velmi úsporná
- Energetický ukazatel podle vyhlášky: č. 264/2020 Sb.
- Popis vybavení: .
Právní rádce
-
Detail
V tomto článku shrneme nejdůležitější věci, které byste si měli promyslet, pokud se chystáte prodat svou nemovitost a chcete, abyste s kupujícím nemusel následně řešit vzniklé problémy.
Jako prodávající nesete rizika spojená nejen se samotným obchodem, ale i se stavem nemovitosti v době prodeje a pro minimalizaci rizik, je dobré se zamyslet nad uvedenými oblastmi.
-
Detail
Realitní makléř má své nezastupitelné místo v realitním obchodu. Realitním makléřem nemyslím nevzdělané jelito, které absolvovalo dvoudenní školení a ví, jak se nahraje inzerát na inzertní portál.
Realitním makléřem, který se Vám skutečně vyplatí, je zkušený profesionál, který je schopen Vám dobře poradit jak prodat za co nejvíc a s nejmenším rizikem a hlavně je Vás schopen obratně provést celým realitním obchodem.
Mapa
Podobné nemovitosti
Prodej - dům/vila, 195 m²
Ke Splavu, Praha-Újezd, Újezd u Průhonic
38 700 000 Kč
Prodej - dům/vila, 195 m²
Ke Splavu, Praha-Újezd, Újezd u Průhonic
38 700 000 Kč
Prodej - dům/vila, 157 m²
Nad statkem, Praha-Újezd, Újezd u Průhonic
18 500 000 Kč
Prodej - dům/vila, 157 m²
Nad statkem, Praha-Újezd, Újezd u Průhonic
19 500 000 Kč