Prodej bytu, 3+kk, 69 m²
Plamínkové, Praha 4, Nusle
10 790 000 KčProdej bytu, 3+kk, 69 m²
Plamínkové, Praha 4, Nusle
Prodej bytu 3+kk, 69m2, nově po kompletní rekonstrukci, 50m od ARKÁDY PANKRÁC, =M=
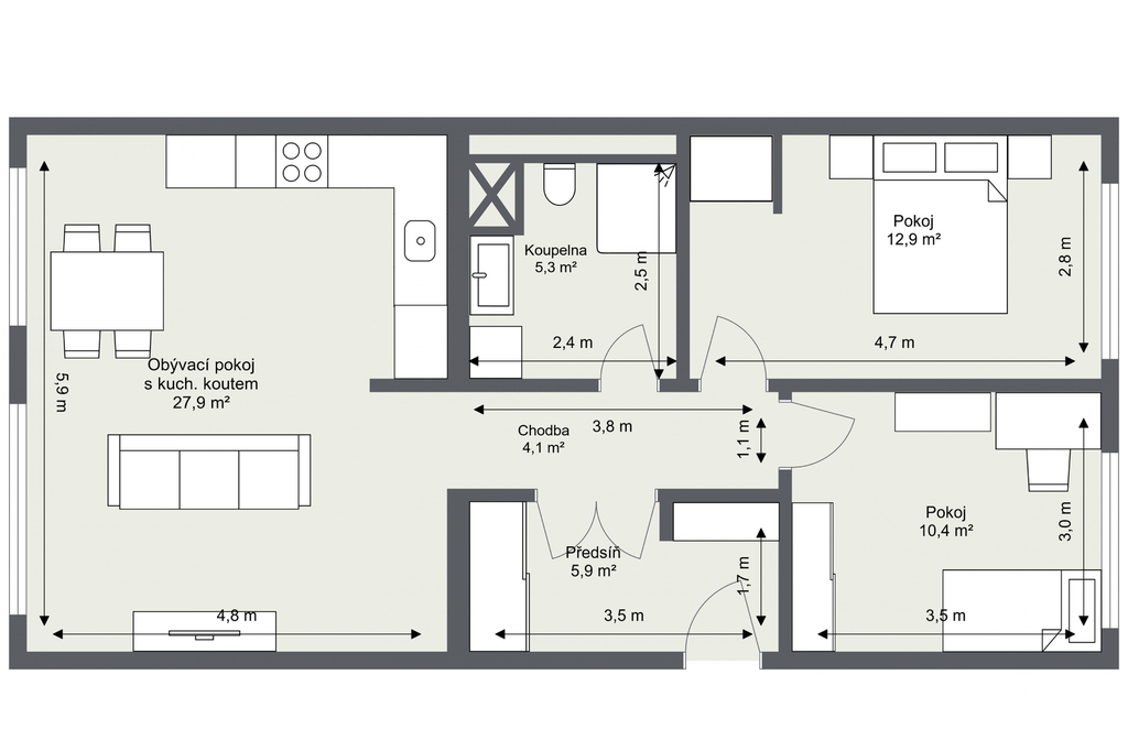
Pokoje jsou samozřejmě neprůchozí. Dispozice naplňuje veškeré požadavky pro moderní bydlení. Tedy po vstupu do bytu se ocitnete v předsíni, kdy byla instalována vestavěná, zrcadlová šatní skříň na míru. Prosklenými dveřmi pokračujete buď do dětského pokoje, kde byla rovněž instalována menší vestavěná šatní skříň, nebo do ložnice, kam se pohodlně vejde 2m x 1,8m postel, noční stolky i další skříň na oblečení.
Byt má novou elektroinstalaci, jistič 3x20A. Ve všech místnostech datové zásuvky. Srovnané vinylové akustické podlahy. Nové bezpečnostní vstupní dveře. Kuchyňska linka IKEA s výběrem vyššího standardu vestavěných spotřebičů (odsavač par, myčka, lednice s mrazákem, mikrovlnná trouba). Odsavač par v kuchyni a ventilace v koupelně jsou nehlučné - navazují na centrální vzduchotechniku, kterou dům má.
Koupelna byla vybudován tak, aby se pohodlně vešla pračka se sušičkou (přípojky připraveny). Je zde prostorný sprchový kout, umyvadlo se skříňkou, topný žebřík, závěsné WC.
Vězte, že nejvíce si zamilujete polohu bydlení a lokalitu - tedy pokud ji ještě tolik neznáte. Opravdu 50m - to je vzdálenost od vchodu domu ke vchodu do nákupního centra ARKÁDY PANKRÁC, kde je rovněž umístěn vstup do metra PANKRÁC (C). Pokud máte nebo plánujete děti, základní a mateřská škola je naproti přes ulici a mateřská škola asi 250m od domu. Pro vycházky bych doporučil Centrální park Pankrác nebo Kavčí Hory.
Nenechte si ujít příležitost a včas mě kontaktujte, pokud máte zájem o osobní prohlídku tohoto bytu.
| Cena: | 10 790 000 Kč |
| Datum k nastěhování: | 03.01.2026 |
| Dispozice/podlahová plocha: | 3+kk/69 m² |
| Číslo zakázky: | REALITYMIX-0028 |
Podrobné informace
- Dispozice bytu: 3+kk
- Číslo podlaží v domě: 1
- Počet podlaží objektu: 8
- Užitná plocha: 67 m²
- Celková podlahová plocha: 69 m²
- Druh objektu: panelová
- Stav objektu: po rekonstrukci
- Vlastnictví: osobní
- Sklep: 2 m²
- Umístění objektu: centrum obce
- Doprava: silnice
- Elektřina: Elektro - 230 V, Elektro - 400 V
- Voda: Voda - dálkový vodovod
- Telekomunikace: Internet
- Plyn: Plynovod
- Odpad: Kanalizace
- Ostatní rozvody: Kabelová televize, Kabelové rozvody
- Energetická náročnost budovy: C - Úsporná
- Energetický ukazatel podle vyhlášky: č. 78/2013 Sb.
Právní rádce
-
Detail
V tomto článku shrneme nejdůležitější věci, které byste si měli promyslet, pokud se chystáte prodat svou nemovitost a chcete, abyste s kupujícím nemusel následně řešit vzniklé problémy.
Jako prodávající nesete rizika spojená nejen se samotným obchodem, ale i se stavem nemovitosti v době prodeje a pro minimalizaci rizik, je dobré se zamyslet nad uvedenými oblastmi.
-
Detail
Realitní makléř má své nezastupitelné místo v realitním obchodu. Realitním makléřem nemyslím nevzdělané jelito, které absolvovalo dvoudenní školení a ví, jak se nahraje inzerát na inzertní portál.
Realitním makléřem, který se Vám skutečně vyplatí, je zkušený profesionál, který je schopen Vám dobře poradit jak prodat za co nejvíc a s nejmenším rizikem a hlavně je Vás schopen obratně provést celým realitním obchodem.