Prodej - dům/vila, 197 m²
Květnová, Praha-Ďáblice, Ďáblice
15 995 900 KčProdej - dům/vila, 197 m²
Květnová, Praha-Ďáblice, Ďáblice
Prodej rodinného domu 5+kk s terasou, garáží a parkováním, 197 m2, Praha 8 - Ďáblice
Dvoupodlažní dům o dispozici 5+kk s užitnou plochou 197 m2 na pozemku 261 m2 v klidné rezidenční části Prahy.
Velkým benefitem nemovitosti je terasa navazující na obytný prostor, garáž v domě a další parkovací stání na vlastním pozemku - prvek, který je v městské zástavbě stále cennější.
Dům nabízí praktickou dispozici, velkorysé místnosti a flexibilní využití pro rodinu i práci z domova. Díky dvěma koupelnám a možnosti plnohodnotného fungování již v přízemí je vhodný i pro vícegenerační bydlení.
Dispozice
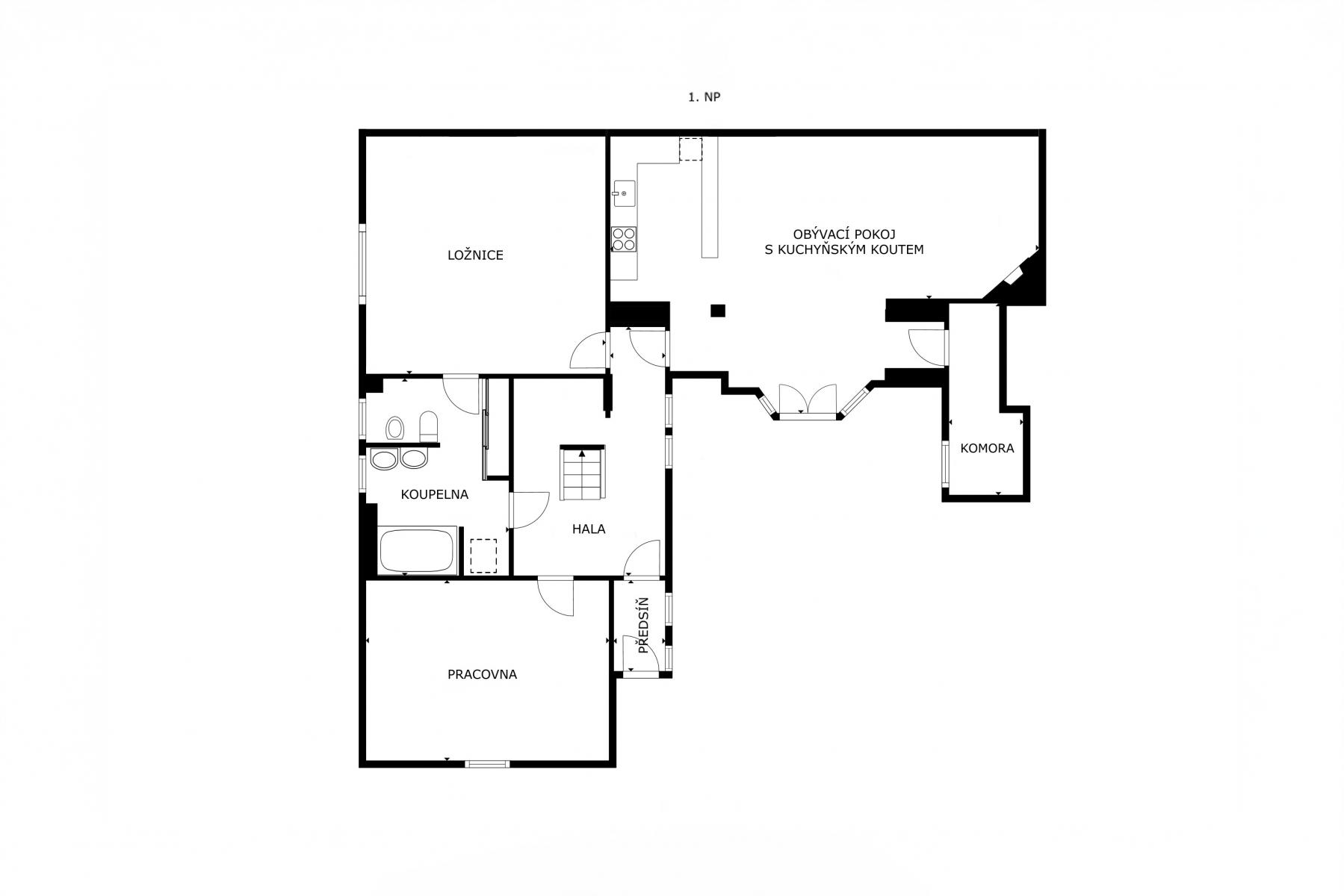
1. nadzemní podlaží
Obývací pokoj s kuchyňským koutem (45 m2) tvoří přirozené centrum domu. Přímý vstup na terasu rozšiřuje obytný prostor o venkovní zázemí pro relaxaci a setkávání.
Dále zde naleznete ložnici, pracovnu, koupelnu s WC, spíž a vstupní část s napojením na garáž.
2. nadzemní podlaží
Dvě prostorné místnosti, druhá koupelna a velká centrální chodba s možností dalšího využití (herna, pracovna, relaxační zóna).
Základní údaje
dispozice: 5+kk
užitná plocha: 197 m2
pozemek: 261 m2
terasa
garáž + další parkovací stání
2 koupelny
podlahové topení
obecní voda + studna na zalévání
Lokalita, která si drží hodnotu
Praha 8 - Ďáblice dlouhodobě patří mezi vyhledávané rezidenční části díky kombinaci klidného prostředí, zeleně a výborné dostupnosti do centra města. Kompletní občanská vybavenost je samozřejmostí.
Nemovitost představuje vyváženou kombinaci prostoru, parkování a venkovního zázemí v rámci hlavního města - což jsou parametry, které zásadně ovlivňují dlouhodobou hodnotu nemovitosti.
Ukazatel energetické náročnosti: G* (údaj PENB bude aktualizován).
| Cena: | 15 995 900 Kč |
| Číslo zakázky: | REALITYMIX-0426P |
Podrobné informace
- Poloha objektu: samostatný
- Druh objektu: cihlová
- Stav objektu: velmi dobrý
- Počet podlaží objektu: 2
- Typ domu: patrový
- Zastavěná plocha: 137 m²
- Plocha parcely: 261 m²
- Užitná plocha: 197 m²
- Umístění objektu: klidná část obce
- Doprava: MHD
- Plyn: Individuální
- Topení: Lokální - plynové
- Odpad: Kanalizace
Právní rádce
-
Detail
V tomto článku shrneme nejdůležitější věci, které byste si měli promyslet, pokud se chystáte prodat svou nemovitost a chcete, abyste s kupujícím nemusel následně řešit vzniklé problémy.
Jako prodávající nesete rizika spojená nejen se samotným obchodem, ale i se stavem nemovitosti v době prodeje a pro minimalizaci rizik, je dobré se zamyslet nad uvedenými oblastmi.
-
Detail
Realitní makléř má své nezastupitelné místo v realitním obchodu. Realitním makléřem nemyslím nevzdělané jelito, které absolvovalo dvoudenní školení a ví, jak se nahraje inzerát na inzertní portál.
Realitním makléřem, který se Vám skutečně vyplatí, je zkušený profesionál, který je schopen Vám dobře poradit jak prodat za co nejvíc a s nejmenším rizikem a hlavně je Vás schopen obratně provést celým realitním obchodem.