Prodej - dům/vila, 197 m²
Legionářů, Praha-Ďáblice, Ďáblice
21 630 000 KčProdej - dům/vila, 197 m²
Legionářů, Praha-Ďáblice, Ďáblice
Rodinný dům se zahradou 4+kk se třemi byty 2+kk, 5 x parkovací stání v Praha 8
Dům má vypracovanou INSPEKCI NEMOVITOSTI.
Dům je částečně podsklepený s komorou na potraviny, technickou místností s pračkou, sušičkou a bojlerem zn. DRAŽICE, 2 x pokoj a jedním pokojem pro hosty se samostatným vchodem z nádvoří. Obývací pokoj s oknem do ulice je součástí kuchyně s novou kuchyňskou linkou se spotřebiči, vše součástí domu a ceny. Spotřebiče: americká lednice zn. BEKO, horkovzdušná trouba zn. AEG, mikrovlnná trouba zn. Concept, sklokeramická deska zn. AEG, digestoř zn. Concept. Koupelna s rohovou vanou a sprchovým koutem, WC je samostatné s malým umyvadlem. Podlahy domu jsou plovoucí a kremnická dlažba s podlahovým topením v koupelně a v ostatních místnosti jsou osazeny radiátory.
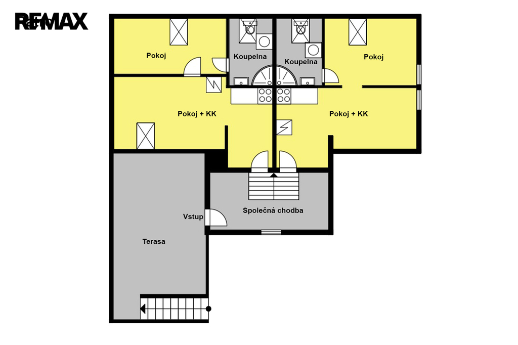
Byty v 2. NP:
Společná chodba pro dva byty vedle sebe byt č. 2 o velikosti 2+kk/cca 34,37 m2 s koupelnou se sprchovým koutem a WC, byt má vlastní bojler, el. hodiny, je vybaven spotřebiči (lednice, el. sporák a trouba, digestoř, pračka, mikrovlnná trouba a nábytek).
Byt č. 3 o velikosti 2+kk/cca 36,13 m2 se dvěma pokoji a kuchyňským koutem se spotřebiči a samostatnou koupelnou se sprchovým koutem.
Byt v přízemí:
Byt č. 1 o velikosti 2+kk se samostatným vstupem do bytů z nádvoří domu. Byt je vybaven nábytkem a spotřebiči a má vlastní bojler na ohřev vody a vlastní el. hodiny.
Všechny byty a dům jsou vytápěny plynovým kotlem zn. JUNKERS z kotelny a dílny, která má samostatný vstup z nádvoří domu.
Byty jsou v současné chvíli pronajaty a zajištují měsíční výnos 65 000 Kč (není ovšem podmínkou, nájemníci jsou s prodejem seznámeni, záleží na preferencích nového vlastníka).
Technické informace:
Stavba domu je cihlová, zateplená polystyrénem.
Okna jsou nová plastová a v 2. NP jsou i nová plastová střešní okna.
Střešní krytina s vlnitou novou plechovou krytinou včetně okapů a hromosvodu.
Vytápění domu je v kotelně - plynovým kotlem zn. JUNKERS - Přípojka do domu je z 25. 11. 2002.
Dům je napojený na kanalizační přípojku a revizní šachtu od 02. 08. 1996.
Na pozemku je studna
Každý byt a i dům má svůj samostatný bojler na ohřev vody a vlastní elektroměr.
Nově rozvody vody v plastu a elektřiny v mědi.
Pozemek
Zastavěná plocha a nádvoří domu o velikosti 358 m2 je osazeno zámkovou dlažbou a umožňuje vjezd na pozemek přímo z ulice Legionářů
Zahrada u domu o velikosti 303 m2 poskytuje klid a útočiště s posezením pod ovocnými stromy vedle zahradního domku.
Na pozemku je vlastní studna, kterou majitelé nyní nevyužívají.
Ovocné stromy – třešeň, jabloň, švestka
Metro C – nejbližší stanice Ládví / Kobylisy, Tramvaj v dosahu, spojení na D8, Bus
| Cena: | 21 630 000 Kč |
| Poznámka: | Cena je včetně provize a DPH a může se měnit s poptávkou |
| Datum k nastěhování: | 30.10.2025 |
| Číslo zakázky: | REALITYMIX-425855 |
Podrobné informace
- Poloha objektu: v bloku
- Druh objektu: cihlová
- Stav objektu: po rekonstrukci
- Počet podlaží objektu: 2
- Typ domu: patrový
- Zastavěná plocha: 358 m²
- Plocha parcely: 661 m²
- Zahrada: 303 m²
- Užitná plocha: 197 m²
- Sklep: 5 m²
- Umístění objektu: okraj obce
- Doprava: dálnice, silnice, MHD, autobus
- Komunikace: asfaltová
- Elektřina: Elektro - 230 V, Elektro - 400 V
- Voda: Zdroj pro celý objekt, Voda - dálkový vodovod
- Telekomunikace: Internet
- Plyn: Plynovod
- Odpad: Kanalizace
- Energetická náročnost budovy: C - Úsporná
- Ukazatel energetické náročnosti budovy: 109 kWh/m²
- Energetický ukazatel podle vyhlášky: č. 264/2020 Sb.
Právní rádce
-
Detail
V tomto článku shrneme nejdůležitější věci, které byste si měli promyslet, pokud se chystáte prodat svou nemovitost a chcete, abyste s kupujícím nemusel následně řešit vzniklé problémy.
Jako prodávající nesete rizika spojená nejen se samotným obchodem, ale i se stavem nemovitosti v době prodeje a pro minimalizaci rizik, je dobré se zamyslet nad uvedenými oblastmi.
-
Detail
Realitní makléř má své nezastupitelné místo v realitním obchodu. Realitním makléřem nemyslím nevzdělané jelito, které absolvovalo dvoudenní školení a ví, jak se nahraje inzerát na inzertní portál.
Realitním makléřem, který se Vám skutečně vyplatí, je zkušený profesionál, který je schopen Vám dobře poradit jak prodat za co nejvíc a s nejmenším rizikem a hlavně je Vás schopen obratně provést celým realitním obchodem.