Prodej - dům/vila, 157 m²
Nad statkem, Praha-Újezd, Újezd u Průhonic
19 500 000 KčProdej - dům/vila, 157 m²
Nad statkem, Praha-Újezd, Újezd u Průhonic
Váš nový domov v Praze (novostavba RD v MČ Újezd u Průhonic)
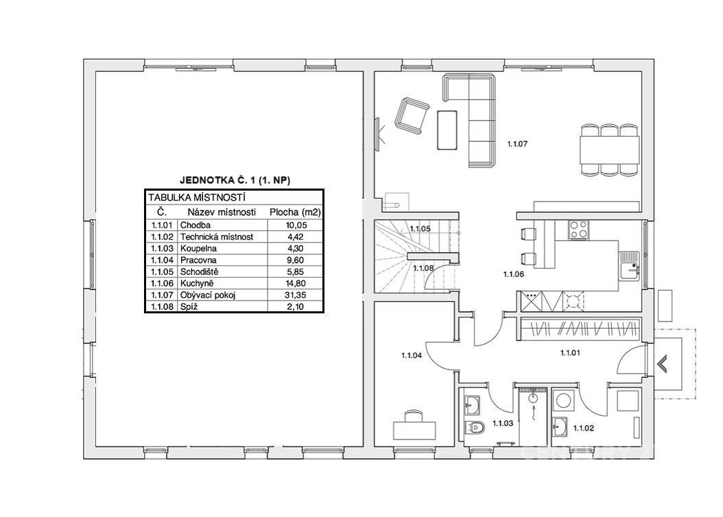
Vaše budoucí bydlení je navrženo tak, aby splňovalo současné požadavky na komfort. Dispozice jednotky je 5+KK o celkové podlahové ploše 157 m² a se rozkládá se ve dvou nadzemních podlažích. Součástí domu je vlastní zahrada a parkovací stání. Nemovitost je napojena na elektřinu, vodu a kanalizaci. Kolaudace proběhla v říjnu 2025 a dům je nyní ve fázi 'whitewall', tedy máte možnost vlastní volby účelu místností konfigurace těchto prvků je nyní na vás. Případně vám developer dům dodělá 'na klíč' za 10 % ceny. Více informací vám poskytne makléř.
Nadstandard a úspora energií
Kromě promyšlené dispozice se můžete těšit na celou řadu moderních prvků. Vytápění a ohřev vody zajišťuje tepelné čerpadlo v kombinaci s teplovodním podlahovým topením, což spolu s rekuperací tepla zaručuje nízké provozní náklady. Nemovitost spadá do energetické třídy B, tedy do kategorie velmi úsporných budov, dalšímu upgradu pomůže i příprava na fotovoltaiku. Projekt počítá s nadstandardním vybavením, jako jsou velkoformátové obklady, značkové sanitární předměty, elektrické žaluzie, zabezpečovací systémy a příprava pro systém smarthome a krb.
Lokalita, co vám vezme dech
Dům se nachází v klidné rezidenční čtvrti s dostatkem zeleně a širokou občanskou vybaveností v docházkové vzdálenosti (sportoviště na fotbal a tenis, škola, školka, restaurace, kavárna a obchody). Další rozšířená vybavenost, včetně nákupních center, je dostupná v sousedních Čestlicích, Průhonicích a Chodově, kam se autem dostanete za pouhých 10 minut. Pro milovníky přírody, sportu (např. běhu nebo joggingu a cyklistiky) je okolí doslova rájem (Milíčovský les, Průhonický park a dendrologická zahrada), nedaleko jsou 3 rybníky a navazující plochy polí, luk a lesů. Dopravní dostupnost do centra je vynikající, zastávka MHD je pouhých 170 metrů od domu a rychlé napojení na dálnici D1 je ve dvou variantách nájezdů.
Jak si svůj sen splnit?
V současné fázi výstavby, s 90% dokončeností, vám nabízíme dvě možnosti, jak se stát majitelem této unikátní nemovitosti:
A./ Kdy si sami dokončíte interiér dle svých představ a získáte tak bydlení za nejnižší cenu, nebo B./ budete chtít dokončení od developera 'na klíč'. Bližší informace o ceně vám podá makléř. Rychlé dokončení s garancí! Developer garantuje: Dokončení stavby do 3 měsíců • Maximální cenu dokončení na klíč: 1 000 000 Kč. Standardy: Villeroy & Boch, Hansgrohe, SOHO, Grohe, Geberit, Provenza.
Nenechte si ujít tuto výjimečnou příležitost a kontaktujte nás pro více informací. Některé fotografie jsou pouze vizuálním návrhem.
| Cena: | 19 500 000 Kč |
| Poznámka: | Cena za bytovou jednotku č. 1 a polovinu domu se zahradou. |
| Datum k nastěhování: | 04.10.2025 |
| Číslo zakázky: | REALITYMIX-971857 |
Podrobné informace
- Poloha objektu: řadový
- Druh objektu: cihlová
- Stav objektu: novostavba
- Počet podlaží objektu: 2
- Typ domu: patrový
- Zastavěná plocha: 99 m²
- Plocha parcely: 796 m²
- Zahrada: 697 m²
- Užitná plocha: 157 m²
- Terasa: 14 m²
- Doprava: dálnice, silnice, MHD
- Elektřina: Elektro - 230 V
- Voda: Zdroj pro celý objekt, Voda - dálkový vodovod
- Telekomunikace: Internet
- Plyn: Plynovod
- Odpad: Kanalizace
- Energetická náročnost budovy: B - Velmi úsporná
- Energetický ukazatel podle vyhlášky: č. 264/2020 Sb.
- Popis vybavení: .
Právní rádce
-
Detail
V tomto článku shrneme nejdůležitější věci, které byste si měli promyslet, pokud se chystáte prodat svou nemovitost a chcete, abyste s kupujícím nemusel následně řešit vzniklé problémy.
Jako prodávající nesete rizika spojená nejen se samotným obchodem, ale i se stavem nemovitosti v době prodeje a pro minimalizaci rizik, je dobré se zamyslet nad uvedenými oblastmi.
-
Detail
Realitní makléř má své nezastupitelné místo v realitním obchodu. Realitním makléřem nemyslím nevzdělané jelito, které absolvovalo dvoudenní školení a ví, jak se nahraje inzerát na inzertní portál.
Realitním makléřem, který se Vám skutečně vyplatí, je zkušený profesionál, který je schopen Vám dobře poradit jak prodat za co nejvíc a s nejmenším rizikem a hlavně je Vás schopen obratně provést celým realitním obchodem.
Mapa
Podobné nemovitosti
Prodej - dům/vila, 157 m²
Nad statkem, Praha-Újezd, Újezd u Průhonic
18 490 000 Kč
Prodej - dům/vila, 116 m²
Sukovská, Praha-Újezd, Újezd u Průhonic
16 200 000 Kč
Prodej - dům/vila, 157 m²
Nad statkem, Praha-Újezd, Újezd u Průhonic
18 490 000 Kč
Prodej - dům/vila, 314 m²
Nad statkem, Praha-Újezd, Újezd u Průhonic
35 990 000 Kč