Prodej - dům/vila, 161 m²
Gagarinova, Přelouč, Pardubice
7 500 000 KčProdej - dům/vila, 161 m²
Gagarinova, Přelouč, Pardubice
Prodej domu 4+1, Přelouč 161 m
Vytápění objektu je zajištěno plynovým kotlem a kotlem na tuhá paliva, přičemž topení je rozvedeno do radiátorů. Odpad je napojen na kanalizaci a přívod vody zajišťuje vodovod.
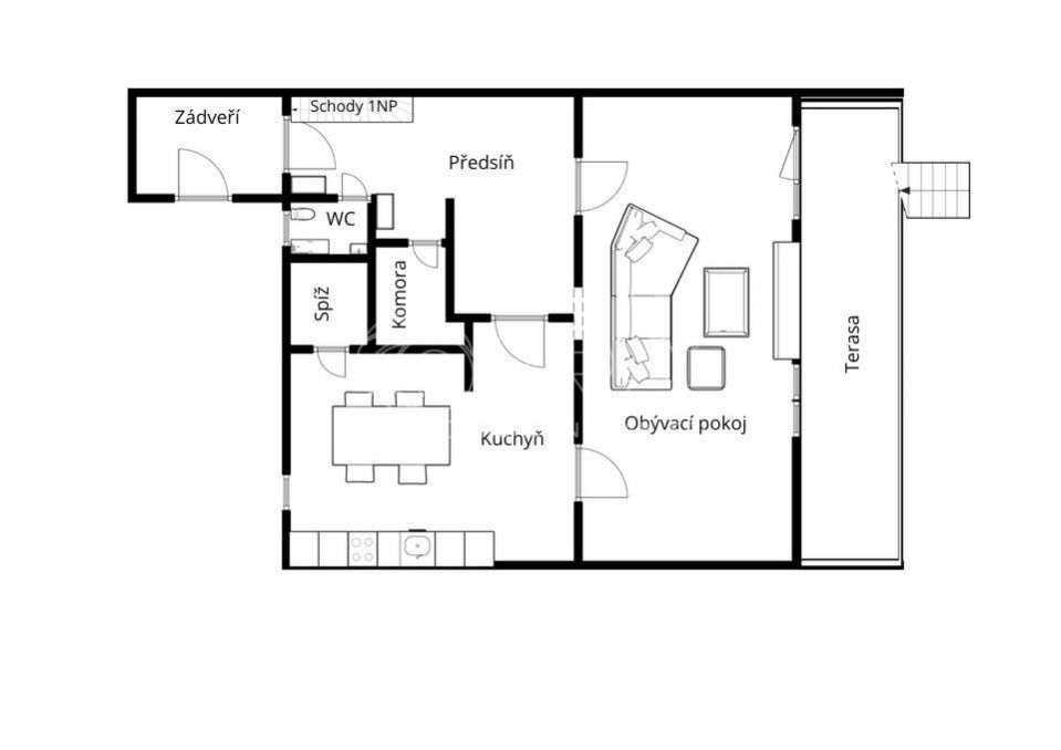
Nemovitost je kompletně podsklepena, s plochou sklepa 66 m, což poskytuje dostatek úložného prostoru. Součástí domu je také garáž o výměře 23 m, ideální pro bezpečné parkování.
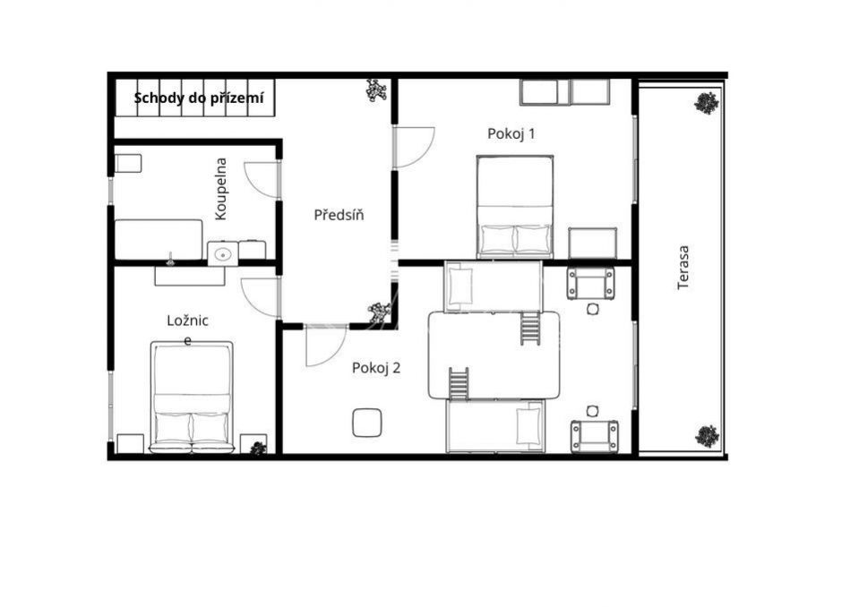
Ve druhém patře se nachází tři prostorné pokoje, z nichž dva jsou propojené balkonem, což poskytuje příjemné výhledy a možnost relaxace na čerstvém vzduchu. Obývací pokoj je propojen s terasou o výměře 21 m, ze které se dostanete přímo na zahradu. Tato zahrada je vynikajícím místem pro rodinné oslavy či odpočinek a nabízí prostor pro pěstování rostlin nebo zahradničení.
Dům je připraven na rekonstrukci, což umožňuje novému majiteli přizpůsobit si interiér podle vlastních představ a potřeb. Konečná úprava domu může být skvělou příležitostí pro realizaci vlastního stylu bydlení.
Dům se nachází v klidné lokalitě, která nabízí pohodlné spojení s okolní infrastrukturou, a to včetně vlakového a autobusového spojení.
V případě zájmu o prohlídku nás neváhejte kontaktovat.
| Cena: | 7 500 000 Kč |
| Číslo zakázky: | REALITYMIX-Prodej domu Gagarino |
Podrobné informace
- Poloha objektu: řadový
- Druh objektu: cihlová
- Stav objektu: před rekonstrukcí
- Počet podlaží objektu: 2
- Typ domu: patrový
- Zastavěná plocha: 89 m²
- Plocha parcely: 333 m²
- Užitná plocha: 161 m²
- Sklep: 66 m²
- Umístění objektu: klidná část obce
- Doprava: vlak, silnice, autobus
- Plyn: Plynovod
- Odpad: Kanalizace
- Energetická náročnost budovy: G - Mimořádně nehospodárná
Právní rádce
-
Detail
V tomto článku shrneme nejdůležitější věci, které byste si měli promyslet, pokud se chystáte prodat svou nemovitost a chcete, abyste s kupujícím nemusel následně řešit vzniklé problémy.
Jako prodávající nesete rizika spojená nejen se samotným obchodem, ale i se stavem nemovitosti v době prodeje a pro minimalizaci rizik, je dobré se zamyslet nad uvedenými oblastmi.
-
Detail
Realitní makléř má své nezastupitelné místo v realitním obchodu. Realitním makléřem nemyslím nevzdělané jelito, které absolvovalo dvoudenní školení a ví, jak se nahraje inzerát na inzertní portál.
Realitním makléřem, který se Vám skutečně vyplatí, je zkušený profesionál, který je schopen Vám dobře poradit jak prodat za co nejvíc a s nejmenším rizikem a hlavně je Vás schopen obratně provést celým realitním obchodem.