Prodej - pozemek pro bydlení, 27 971 m²
Kolín
42 935 485 KčProdej - pozemek pro bydlení, 27 971 m²
Kolín
Prodej pozemku Starý Kolín
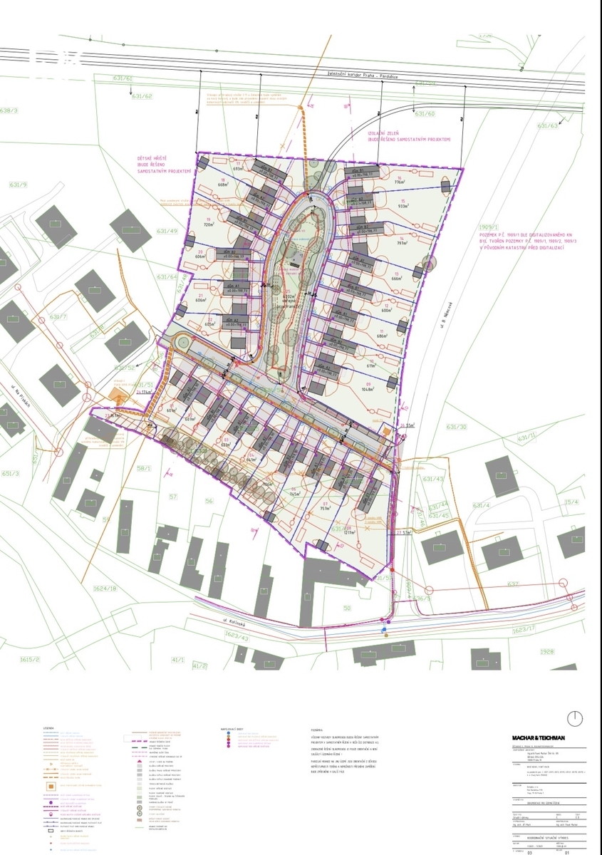
Celková výměra řešeného území činí 27 971 m², z toho 20 565 m² tvoří zastavitelná plocha.
Projekt má vydané pravomocné územní rozhodnutí původně na výstavbu 22 samostatně stojících rodinných domů včetně kompletní infrastruktury, komunikací a dopravního napojení.
V současné době je projekt optimalizován z pohledu návratnosti kapitálu. Nové řešení, které bylo projednáno a schváleno dotčenými orgány, počítá s:
• 14 rodinnými domy
• 8 objekty se dvěma bytovými jednotkami
Celkem tedy 30 prodejných nemovitostí (14 rodinných domů + 16 bytových jednotek), což umožňuje vyšší výnos na m² pozemku, lepší cashflow projektu a rychlejší návratnost investice oproti původní koncepci.
Z technického hlediska je projekt připraven k realizaci:
• zpracovaná dokumentace přeložky VN
• schválené umístění trafostanice společností ČEZ
• zajištěné připojení na vodohospodářskou infrastrukturu
• kladný postoj obce k realizaci projektu
Projekt lze převést:
• v aktuální fázi s vydaným územním rozhodnutím,
• případně včetně zajištění stavebního povolení, dle dohody s investorem.
Jedná se o projekt v pokročilé fázi přípravy, který umožňuje investorovi okamžitý vstup do realizace bez časových ztrát spojených s povolovacími procesy, s jasně definovaným rozsahem a potenciálem dalšího zhodnocení.
| Cena: | 42 935 485 Kč |
| Plocha: | 27971 m² |
| Číslo zakázky: | REALITYMIX-0449 |
Podrobné informace
- Celková plocha: 27971 m²
- Druh pozemku: pro bydlení
- Inženýrské sítě: vodovod, kanalizace, elektřina
- Umístění objektu: klidná část obce
- Doprava: vlak, dálnice, silnice, MHD
- Komunikace: dlážděná
- Energetický ukazatel podle vyhlášky: č. 264/2020 Sb.
Právní rádce
-
Detail
V tomto článku shrneme nejdůležitější věci, které byste si měli promyslet, pokud se chystáte prodat svou nemovitost a chcete, abyste s kupujícím nemusel následně řešit vzniklé problémy.
Jako prodávající nesete rizika spojená nejen se samotným obchodem, ale i se stavem nemovitosti v době prodeje a pro minimalizaci rizik, je dobré se zamyslet nad uvedenými oblastmi.
-
Detail
Realitní makléř má své nezastupitelné místo v realitním obchodu. Realitním makléřem nemyslím nevzdělané jelito, které absolvovalo dvoudenní školení a ví, jak se nahraje inzerát na inzertní portál.
Realitním makléřem, který se Vám skutečně vyplatí, je zkušený profesionál, který je schopen Vám dobře poradit jak prodat za co nejvíc a s nejmenším rizikem a hlavně je Vás schopen obratně provést celým realitním obchodem.
Mapa
Podobné nemovitosti
Prodej - pozemek pro bydlení, 49 984 m²
Karlova, Velim, Kolín
36 320 000 KčProdej - pozemek pro bydlení, 6 240 m²
Doubravčice, Kolín
31 200 000 Kč
Prodej - pozemek pro bydlení, 970 m²
Břežany I, Kolín
2 740 000 Kč
Prodej - pozemek pro komerční výstavbu, 20 875 m²
Palackého, Český Brod, Kolín
Cena na vyžádání