Prodej - dům/vila, 99 m²
Veverské Knínice, Brno-venkov
8 990 000 KčProdej - dům/vila, 99 m²
Veverské Knínice, Brno-venkov
Prodej RD 4+KK na klíč 99 m², poz.-707m², Veverské Knínice
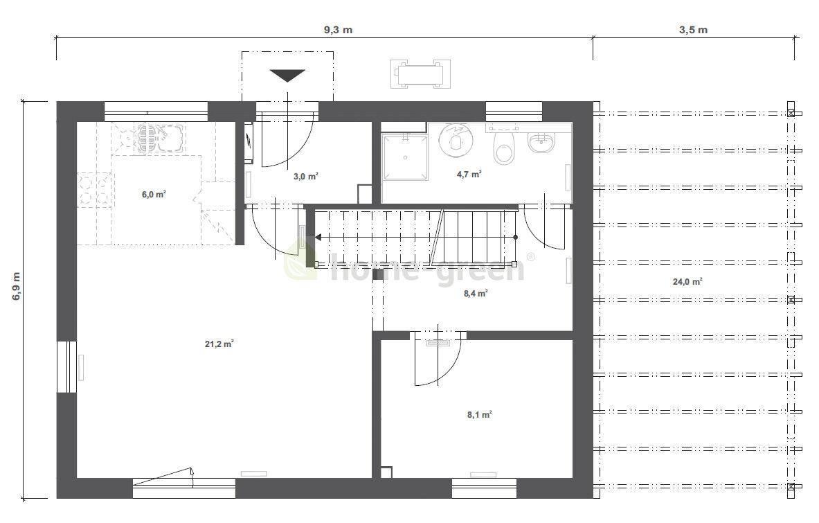
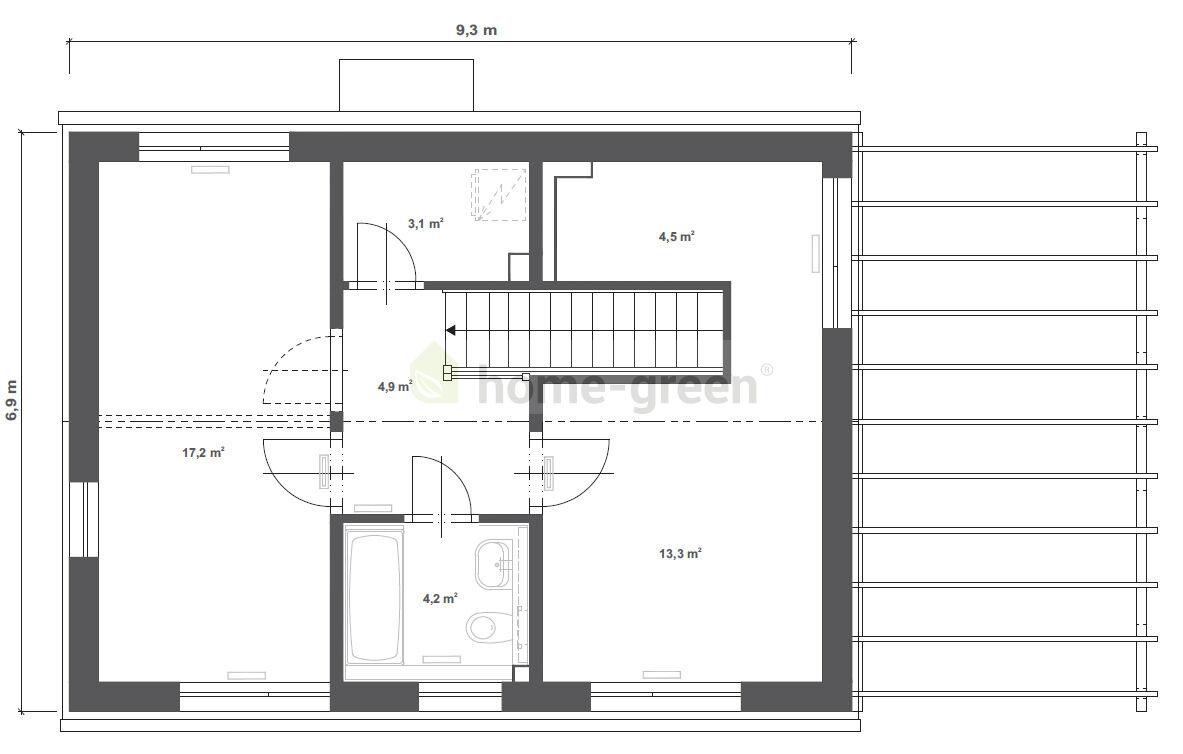
KUBIS 99 je revolučním domem na trhu s dřevostavbami. Je to moderní rodinný dům o dispozicích 4+kk, ideální dům pro rodiny s dětmi, s možností jednoduchého rozšíření na 5+kk. V přízemí se nachází kuchyňský kout spojený s obývacím pokojem, který umožní přímý vstup na slunnou terasu. Nechybí tu ani samostatný pokoj a koupelna. V podkroví se pak nachází další 3 prostorné pokoje a praktická technická místnost. Samozřejmostí je i druhá koupelna. Půdorys o rozměru 9,34 × 6,91 m vám v tomto patrovém rodinném domě poskytne téměř 100 m2 podlahových ploch. Navíc vám KUBIS 99 nabízí možnost rozšíření z dispozice 4+kk na 5+kk. Vedle domu se skvěle hodí i dřevěná pergola, která poslouží jako stání pro auto. V ceně domu je garážové stání formou nezastřešené pergoly. Nabídková cena je včetně pozemku, základové desky, tepelného čerpadla, fotovoltaické elektrárny s ohřevem vody.
Veverské Knínice jsou obec v okrese Brno-venkov v Jihomoravském kraji. Leží na rozhraní Boskovické brázdy a Křižanovské vrchoviny. Krásná příroda v okolí obce poskytuje velké možnosti pro volnočasovou aktivitu v blízkosti Brněnské přehrady a hradu Veveří. Ve Veverských Knínicích můžete navštívit kapličku sv. Ludmily s kamenem z Araratu, případně zrekonstruovanou sokolovnu. Pro výlety do okolí se hodí Podkomorské lesy s památníkem Helenky z Pohádky máje, nebo se můžete vydat na nedalekou vyhlídku Trůn. Mezi další blízké cíle patří Jarošův mlýn ve Veverské Bítýšce , hrad Veveří nebo Auto-motodrom Brno v Ostrovačicích. Obec je součástí dobrovolného svazku obcí Panství hradu veverského. V současné době je v obci 332 domů a žije tu přibližně 954 obyvatel. Obec je vzdálená cca 10 km od města Rosice a cca 20 Km západně od města Brno. Sjezd z dálnice D1 je v blízkosti 3 km u obce Ostrovačice a v centru Brna lze být autem za 15 minut. Vizualizace RD k výstavbě je pouze ilustrativní. Nabídku doporučujeme všem, kteří chtějí bydlet v RD se zahradou za cenu bytu a se zajištěním financování Vám rádi pomůžeme.
| Cena: | 8 990 000 Kč |
| Číslo zakázky: | REALITYMIX-N00019 |
Podrobné informace
- Poloha objektu: samostatný
- Druh objektu: dřevěná
- Stav objektu: projekt
- Počet podlaží objektu: 2
- Typ domu: patrový
- Zastavěná plocha: 65 m²
- Plocha parcely: 707 m²
- Užitná plocha: 99 m²
- Umístění objektu: okraj obce
- Doprava: dálnice, silnice, autobus
- Elektřina: Elektro - 230 V
- Voda: Voda - dálkový vodovod
- Odpad: Kanalizace
- Ostatní rozvody: Kabelové rozvody
- Energetická náročnost budovy: B - Velmi úsporná
- Ukazatel energetické náročnosti budovy: 0.16 kWh/m²
- Energetický ukazatel podle vyhlášky: č. 264/2020 Sb.
Právní rádce
-
Detail
V tomto článku shrneme nejdůležitější věci, které byste si měli promyslet, pokud se chystáte prodat svou nemovitost a chcete, abyste s kupujícím nemusel následně řešit vzniklé problémy.
Jako prodávající nesete rizika spojená nejen se samotným obchodem, ale i se stavem nemovitosti v době prodeje a pro minimalizaci rizik, je dobré se zamyslet nad uvedenými oblastmi.
-
Detail
Realitní makléř má své nezastupitelné místo v realitním obchodu. Realitním makléřem nemyslím nevzdělané jelito, které absolvovalo dvoudenní školení a ví, jak se nahraje inzerát na inzertní portál.
Realitním makléřem, který se Vám skutečně vyplatí, je zkušený profesionál, který je schopen Vám dobře poradit jak prodat za co nejvíc a s nejmenším rizikem a hlavně je Vás schopen obratně provést celým realitním obchodem.