Prodej - pozemek pro bydlení, 1 952 m²
Žandrof, Ždánice, Hodonín
2 990 000 KčProdej - pozemek pro bydlení, 1 952 m²
Žandrof, Ždánice, Hodonín
Prodej stavebního pozemku včetně stavebního povolení 1 952 m², Ždánice
Nemovitost nabízena včetně stavebního povolení a potřebných povolení k okamžitému realizování stavby dle dokumentace která je součástí prodeje.
S rozlohou 1.952 m² poskytuje dostatek prostoru pro stavbu Vašeho vysněného domova s krásným výhledem a soukromím.
Tato klidná lokalita je ideální pro ty, kteří hledají klidné a přírodní prostředí daleko od rušného městského života. Využijte tuto jedinečnou příležitost a postavte si svoje vlastní útočiště a nechejte se okouzlit tímto pozemkem a začněte plánovat svůj nový domov již dnes!
ZÁKLADNÍ INFORMACE
• pozemek: zastavěná plocha a nádvoří 246 m² a zahrada 1706 m²
• typ: novostavba rodinného domu
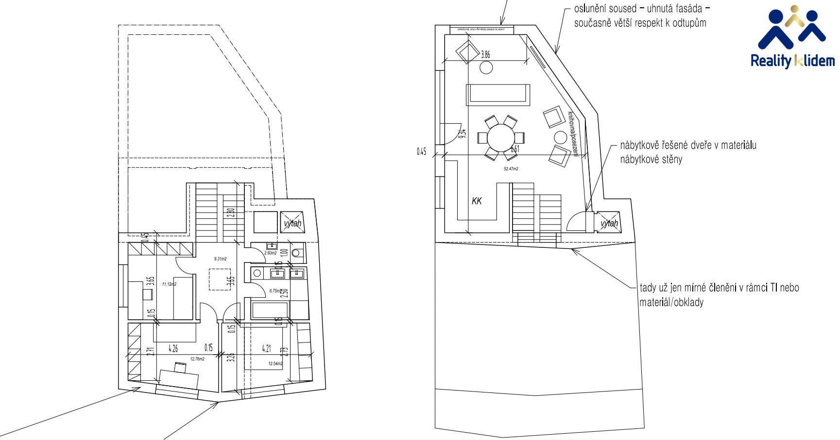
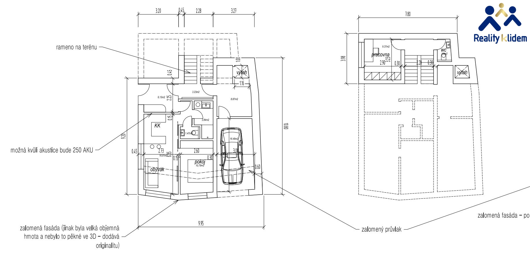
• projektová dokumentace: hotová
• stavební povolení: hotové
CO KUPUJETE
kompletní dokumentaci k realizaci stavby rodinnéh domu
zasíťovaný pozemek
klidnou lokalitu s výbornou dostupností
LOKALITA
Ždánice jsou klidná obec s příjemnou rodinnou atmosférou a kompletní občanskou vybaveností, školy, lékaři, spolky a bazénem, obklopená přírodou a zároveň s rychlou dostupností do Brna a Slavkova u Brna, Bučovic či Kyjova. Lokalita je ideální pro rodinné bydlení mimo ruch města, ale bez ztráty komfortu.
Nádherná okolní příroda kde můžete po steskách stále nacházet nové podněty k příjemnému životu.
,, Motýlí ráj´´ hned u městského úřadu ve Ždánicích. Začátkem léta vás bude provázet až 84 druhů denních motýlů, větší koncentraci pestrých křidélek jinde v naší zemi nenajdete. Naučná stezka vede unikátním biotopem plným starých políček a mezí.
Poletující mámení vás zavede z palouku mezi duby. Ale jaké duby! Statní velikáni tu zvedají koruny několik staletí. Cesta jako z pohádky vás zavede k rozcestí Oříšek. Tady se napojte na druhou naučnou stezku, která vám ukáže Ždánický les v celé jeho kráse. Zapomeňte na spěch! Užijte si klid, šustění stromů, ptačí zpěv i krásné výhledy.
Ještě na Palánek! Vyhlídkové místo leží na starodávném hradišti a žlutá značka vás doprovodí zpět do Ždánic. V místním zámku sídlí Vrbasovo muzeum.
Prohlídky pozemku a prezentace projektu jsou možné po předchozí domluvě.
Ráda Vám poskytnu detailní informace k dispozici naplánovaného domu.
Volejte Irenu Kotolanovou.
| Cena: | 2 990 000 Kč |
| Plocha: | 1952 m² |
| Číslo zakázky: | REALITYMIX-00219 |
Podrobné informace
- Celková plocha: 1952 m²
- Druh pozemku: pro bydlení
- Charakter okolní zástavby: obytná
- Doprava: vlak, silnice, MHD, autobus
- Komunikace: asfaltová
Právní rádce
-
Detail
V tomto článku shrneme nejdůležitější věci, které byste si měli promyslet, pokud se chystáte prodat svou nemovitost a chcete, abyste s kupujícím nemusel následně řešit vzniklé problémy.
Jako prodávající nesete rizika spojená nejen se samotným obchodem, ale i se stavem nemovitosti v době prodeje a pro minimalizaci rizik, je dobré se zamyslet nad uvedenými oblastmi.
-
Detail
Realitní makléř má své nezastupitelné místo v realitním obchodu. Realitním makléřem nemyslím nevzdělané jelito, které absolvovalo dvoudenní školení a ví, jak se nahraje inzerát na inzertní portál.
Realitním makléřem, který se Vám skutečně vyplatí, je zkušený profesionál, který je schopen Vám dobře poradit jak prodat za co nejvíc a s nejmenším rizikem a hlavně je Vás schopen obratně provést celým realitním obchodem.