Prodej - dům/vila, 180 m²
M. Alše, Prštné, Zlín
12 447 000 KčProdej - dům/vila, 180 m²
M. Alše, Prštné, Zlín
Prodej rodinného domu 180 m², pozemek 380 m² Zlín - Prštné
Hledáte nemovitost, která nabízí výnos z pronájmu i možnost komfortního bydlení v jedné z nejvyhledávanějších lokalit Zlína? Pak by vás mohla zaujmout tato nabídka v klidné vilové čtvrti Podhoří, na ulici M. Alše s celkovou plochou pozemku 380m2
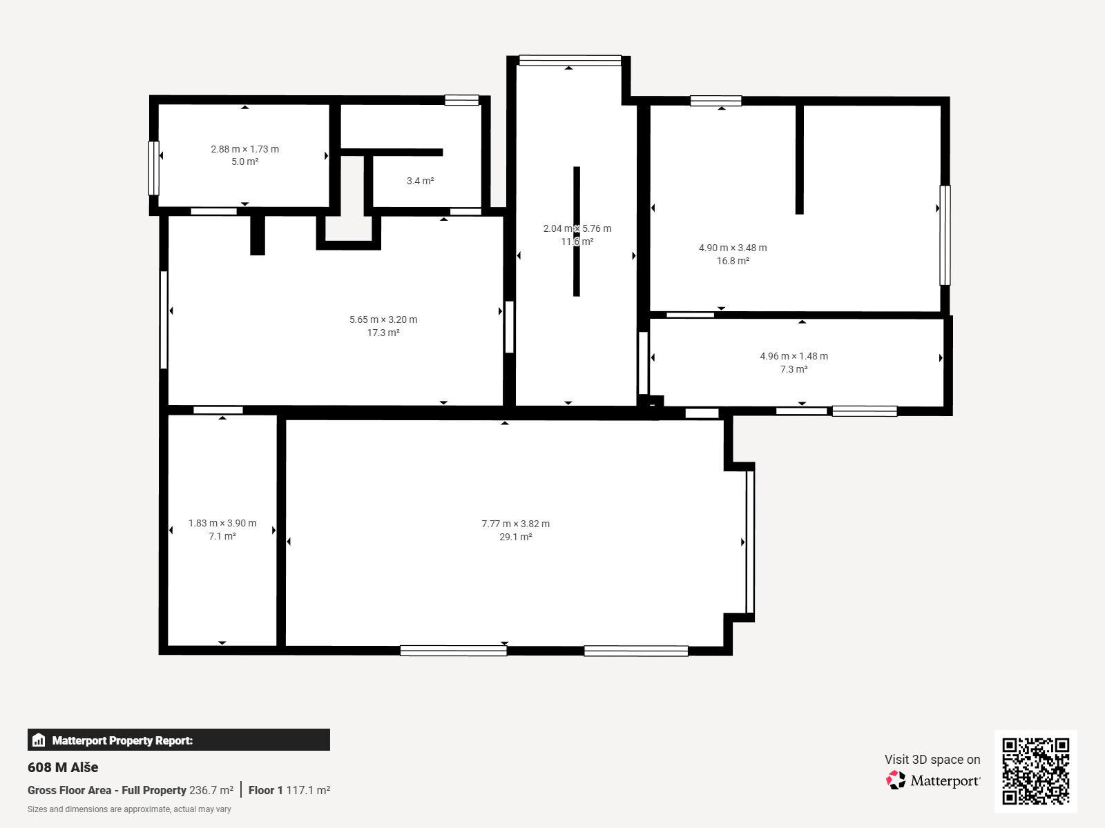
Nabízím k prodeji prostorný rodinný dům z roku 1990 o celkové užitné ploše přibližně 200 m². Dům je rozdělený do dvou částí, které umožňují dvougenerační bydlení, dlouhodobý pronájem nebo krátkodobé ubytování.
Dispozice:
Přízemí: 3+kk, technické zázemí, koupelna, prádelna, garáž
1. patro: Prostorné 4+1 s balkonem
Exteriér: Malá, ale útulná zahrádka s krytým posezením
Parkování: Před domem pohodlné stání pro více aut, nebo v garáži.
Investiční potenciál
Dům je v současnosti pronajatý, což znamená okamžitý výnos pro investora. Dispozice domu přímo vybízí k využití pro pronájem více nájemníkům – každý pokoj je neprůchozí a nabízí dostatek soukromí.
Alternativně může být dům snadno upraven pro komfortní rodinné bydlení, kde každý člen domácnosti ocení množství prostoru i oddělené části domu.
Navíc – možnost přikoupení bungalovu za výhodnou cenu !
Zásadní výhodou této nabídky je možnost přikoupit sousední samostatně stojící bungalov 2+kk o výměře 52 m².
Ten je ideální jako:
zázemí pro hosty
domácí kancelář
další jednotka k pronájmu
Tato kombinace dává novému majiteli do ruky unikátní flexibilitu – můžete bydlet, podnikat, pronajímat, nebo všechno dohromady.
Lokalita – Podhoří, Zlín
Vilová čtvrť Podhoří patří k nejklidnějším a nejžádanějším částem města Zlína. Okolí je tvořeno rodinnými domy, zeleni a naprostým klidem, a přitom je to jen pár minut do centra města. V místě je kompletní občanská vybavenost – MHD, školy, obchody i sportoviště.
Máte zájem o prohlídku nebo více informací?
Neváhejte mě kontaktovat. Rád vám nemovitost osobně představím a zodpovím veškeré dotazy.
Investice se zajímavým potenciálem, navíc v lokalitě, kde se podobné příležitosti objevují málokdy.
Pokud vás taková nabídka zajímá, ozvěte se mi. Rád vám dům osobně ukážu a řeknu víc o možnostech, jak s ním dále pracovat.
Těším se na viděnou,
Váš zlínský makléř, Alex
Průkaz energetické náročnosti budovy nebyl předložen, dle platné legislativy uvádíme energetickou třídu náročnosti G.
| Cena: | 12 447 000 Kč |
| Číslo zakázky: | REALITYMIX-N00105 |
Podrobné informace
- Poloha objektu: samostatný
- Druh objektu: cihlová
- Stav objektu: velmi dobrý
- Počet podlaží objektu: 2
- Typ domu: patrový
- Zastavěná plocha: 118 m²
- Plocha parcely: 380 m²
- Užitná plocha: 180 m²
- Balkon: ano
- Ostatní: Plot, Garáž, Parkoviště
- Umístění objektu: klidná část obce
- Doprava: vlak, dálnice, silnice, MHD, autobus
- Elektřina: Elektro - 230 V, Elektro - 380 V
- Voda: Voda - dálkový vodovod
- Telekomunikace: Telefon, Internet
- Plyn: Plynovod
- Topení: Lokální - plynové
- Odpad: Kanalizace
- Ostatní rozvody: Satelit, Kabelová televize, Kabelové rozvody
- Energetická náročnost budovy: G - Mimořádně nehospodárná
- Energetický ukazatel podle vyhlášky: č. 264/2020 Sb.
Právní rádce
-
Detail
V tomto článku shrneme nejdůležitější věci, které byste si měli promyslet, pokud se chystáte prodat svou nemovitost a chcete, abyste s kupujícím nemusel následně řešit vzniklé problémy.
Jako prodávající nesete rizika spojená nejen se samotným obchodem, ale i se stavem nemovitosti v době prodeje a pro minimalizaci rizik, je dobré se zamyslet nad uvedenými oblastmi.
-
Detail
Realitní makléř má své nezastupitelné místo v realitním obchodu. Realitním makléřem nemyslím nevzdělané jelito, které absolvovalo dvoudenní školení a ví, jak se nahraje inzerát na inzertní portál.
Realitním makléřem, který se Vám skutečně vyplatí, je zkušený profesionál, který je schopen Vám dobře poradit jak prodat za co nejvíc a s nejmenším rizikem a hlavně je Vás schopen obratně provést celým realitním obchodem.